Mijn ontwerpwerk voor de opdrachtgever is op zijn best wanneer ik mij kan concentreren op een gedetailleerd schetsontwerp waar in ik al reeds de gekozen bouwmethode verwerk. Dat ontwerp wordt daarna in samenwerking met de nodige specialisten en een zorgvuldig gekozen bouwer ontwikkeld tot een definitief ontwerp inclusief de werkvoorbereiding passend bij de wens en het budget . Voor verder woning ontwerp vestig ik mijn aandacht op ; regenwateropslag, zuivering voor drinkwater, lowtech oplossingen voor lokale onafhankelijkheid mbt water, energie en voedsel, het ecologisch verantwoord materiaal gebruik, het streven naar een betaalbare prijs en -last but not least- bij voorkeur mijn stijl van ontwerpen in relatie tot natuurlijke structuren en vormen.
Ik bewonder het werk van, en werk zelf met vergelijkbare overtuigingen als.



Het gaat om slimmer werken met de natuur, niet harder ertegen.
Mijn woning ontwerpwerk van af het jaar 2005 tot heden.
2005. 1
Van garage naar woning 2005











2013. 2
Atelierwoning op het zuiden 2013
















Met CLT cross laminated timber als bouwmateriaal creëerde ik een ontwerp dat vroeger met beton mogelijk was. Het ontwerp ontstond mede door opgeslagen beelden uit mijn reizende bestaan langs Scandinavische jachtclubs – een overdekt terras op het zuiden met uitzicht, en kloosters – besloten met licht gevulde hoge ruimte op de begane grond .

2017. 3
Atelierwoning op het noorden 2017










Met CLT cross laminated timber in combinatie met Glulam langs gelamineerd vurenhout als bouwmateriaal.


Creëerde ik een ontwerp dat in bouwstijl paste bij de vorige en aangrenzende atelierwoningen . Deze woning is op het noorden georiënteerd met veel glas in de gevel van af de tweede verdieping. Ik was geïnspireerd door een atelierwoning op de Montmartre.
2018. 4
Schilders atelier 2018






2020. 5
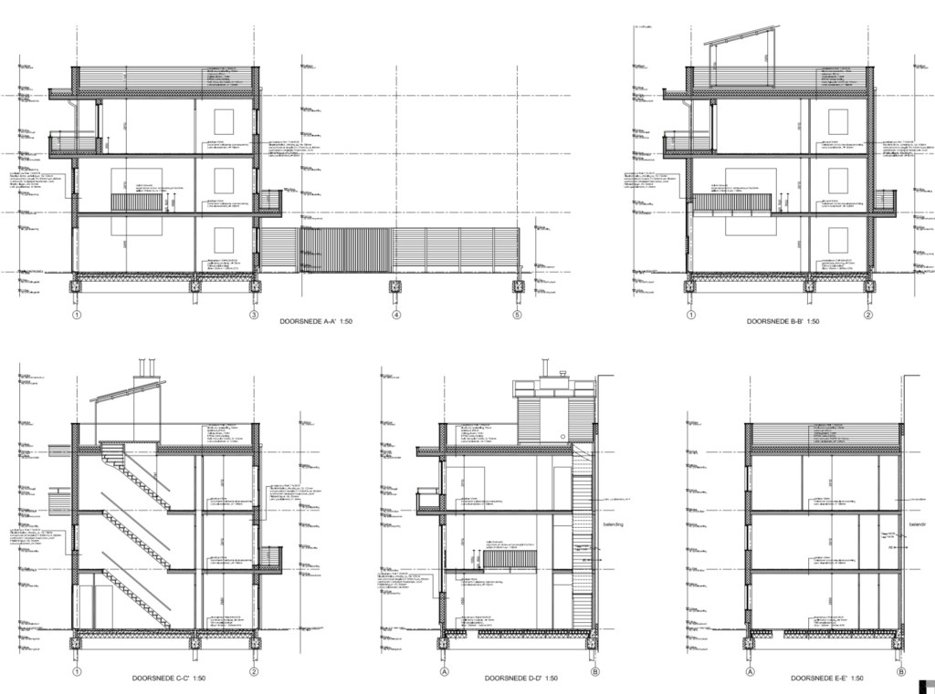
Woning op het zuiden “ het zon huis”2020
Deze woning ontwierp ik gebaseerd op een segment uit een vormstudie uit 2005.

Het segment vertegenwoordigd 120 graden van de cirkel en staat in relatie tot de kortste dag van het jaar. De grote overstek op het zuiden bewerkstelligt comfort ( schaduw) in de zomer. Terwijl de lage zonnestand van zonsopkomst tot ondergang in de winter het huis verwarmd. De woning is voornamelijk als constructie samengesteld uit CLT elementen 60 cm vrij van de ondergrond. En voor de opengewerkte gevel is Glulam toegepast.























2023. 6
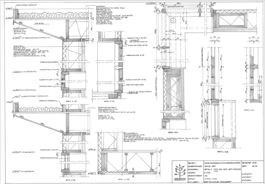
Woning op hoge poten 2023
Dit ontwerp refereert aan een klassiek beeld van een houten woning op palen. De constructie bestaat uit Gluwlam houtscelet maatwerk onderdelen met traditionele schoren en korbelen onder de vloer en met magnesiumoxide platen boven de vloer voor de stabiliteit van het gebouw. De grote overstek en het terras is op het oosten georiënteerd wat resulteert in het van af de ochtend binnen laten van de winterzon. De woning staat op 1,5 meter palen voor overdekte buitenruimte onder de woning en voor het volledig kunnen bouwen in hout los van de ondergrond.










2023. 7
Uit en inklapbaar zomer huis 2023
Het ontwerp maakte ik op basis van twee wensen; het kunnen inklappen voor tijdens de winterperiode en materiaal keuze voor het exterieur met een onderhoudsvrij karakter.







Ontwerp: Bart Verschoor. Definitief ontwerpontwikkeling / werkvoorbereiding in samenwerking met en gebouwd door :De Hoop – Amsterdam
2024
uitbouw zonhuis.



2025. 8
woning nieuwe stijl.



Voor deze woning volledig uit hout samengesteld is gekozen voor een houtskelet bouwmethode die zich kenmerkt door gebruik te maken van een I – balk ( licht gewicht vloer / dak balken en wandstijlen ) en LVL ( Laminated Veneer Lumber )
De woning staat 60 cm boven het maaiveld op 12 stalen voeten.
De isolatie zal ingeblazen hout wol zijn. De gevel komt tot stand met houtvezelplaat voorzien van een kalkstuc. De binnenwand afwerking zal voornamelijk leemstuc zijn.
De gevel openingen krijgen houten maatwerk profielen als kozijn lijsten , deuren en ramen.
Het ontwerp , de werkvoorbereiding / begroting en de bouw wordt gerealiseerd door de opdrachtgever / zelfbouwer in samenwerking met leerling bouwers onder begeleiding van Bart Verschoor.





































2025. 9
Uitbouw woning Amsterdam.

